







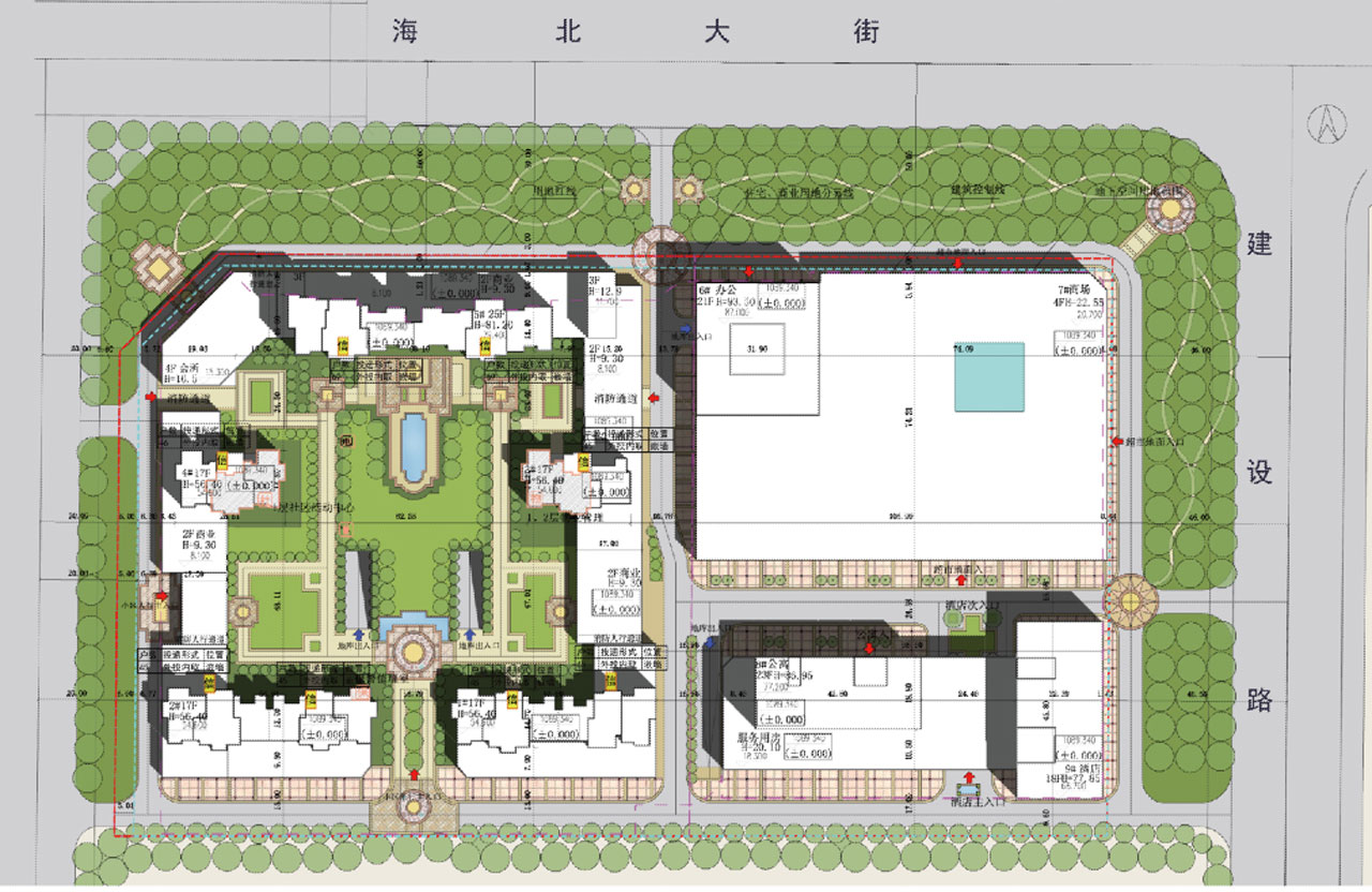
乌海市新锐房地产开发有限责任公司开发建设的海北广厦项目,北临海北大街,南依新锐雅园住宅小区,西靠车站北路,东临建设北路,项目总占地面积为37844 m2(56.77亩)。海北广厦项目计划总投资3.5亿元,总建筑面积182418m2,其中地上建筑面积149819m2;地下建筑面积为32598m2。安置回迁户97户,商业回迁为48户,货币补偿共计8户。同时本项目为海勃湾区车站北路棚户区代建回迁安置房屋166户。海北广厦项目被列为2015年海勃湾区保障性安居工程建设项目。
海北广厦将商业、办公、居住、餐饮、会议、文娱和交通等城市生活空间进行组合,从而形成一个多功能、高效率的综合体,为业主的一站式购物休闲提供便利,北面植物园,西面葡萄园形成了阻挡风沙的绿色屏障,也是提升空气质量的净化器。
项目周边配套便利:
1·距乌海市火车站5分钟路程。
2·距乌海市机场15分钟路程。
3·紧邻葡萄园景观带,距乌海市滨河景观带,植物园景观带,市人民广场5分钟路程。
4·周边遍布乌海市星级酒店。
5·五完小,二中,滨河高中文体中心5分钟内都可到达,文化氛围浓重。
6·紧邻滨河区
7·物业公司由具有多年服务管理经验的乌海市星元物业服务公司承接服务。
商业配套完善,住宅区独立静谧,住宅楼宇排列方式科学合理,小区内景观资源可共享,各楼宇采光通风佳,绿化率≥60% 。
全部地下停车场,确保爱车安全,同时促成地面最大程度绿化
人车分流,动线明确,确保地面行人安全。
项目概况:海北广厦项目建设内容主要为住宅、公寓、酒店、办公楼、超市、商场、地下车库及配套设施。项目建设规模及内容为:五栋住宅楼其中包括一栋25层、四栋17层及外围2层沿街商铺(共有住户718套);一栋21层办公楼(带1~4层裙楼),1~4层裙楼为商场地下一层为超市;两栋18层公寓楼(带1~4层裙楼),并设有地下停车场。
现住宅部分1#、2#、3#、4#楼已封顶,地上均17层;5#楼共25层,已建至17层;6#、、7#楼公寓(18层)均已封顶;写字楼21层,已建至6层;商场部分共4层,已建至地上一层。整体工程已于2015年4月15日开工建设,2016年4月10日复工建设,预计于2016年12月31日全部交工(除5号楼)。该项目五证齐全,预售房许可证已于2015年11月办理并取得。